志木市(埼玉県)の土地・宅地・分譲地の購入情報

志木市(埼玉県)の土地・宅地・分譲地の購入情報をご覧いただけます。

126

↓ チェックした物件をまとめてお問い合わせ

外観:311002044745 土地
区画図:311002044745
  • 2,100万円
  • 埼玉県志木市中宗岡1丁目
  • 東武鉄道東上線 志木駅/バス 16分/志木高校入口 徒歩5分
  • 99.94㎡/30.23坪
  • 60%(建ぺい率)
  • 168%(容積率)

バス便充実でアクセス快適!志木市立宗岡第四小学校 徒歩8分、宗岡中学校徒歩10分と通学も安心。周辺は落ち着いた住宅街で子育てに適した環境です。お好きなハウスメーカーで理想の住まいを実現頂けます。

  • 建築条件なし
  • 更地
  • 角地
  • 南道路
  • 古家付き
  • 所有権あり
株式会社マイタウン 志木本店

志木・朝霞市・新座・富士見・板橋区・練馬区・西東京市を中心に東武東上線・JR武蔵野線・JR有楽町線・西武池袋線のお住まいの事なら当社にお任せ下さい!お客様の立場になって親身にご相談に乗ります。

その他の情報

外観:311002274545 土地
区画図:311002274545
  • 2,580万円
  • 埼玉県志木市本町3丁目
  • 東武鉄道東上線 志木駅/徒歩15分
  • 100.22㎡/30.31坪
  • 60%(建ぺい率)
  • 200%(容積率)

■「志木」駅より徒歩15分の閑静な住宅地 ■小学校まで徒歩5分でお子様の通学に便利 ■商業施設が徒歩圏内に点在した暮らし便利な住環境 ■お好きなハウスメーカーでご建築可能 ■約30坪のゆとりある敷地

  • 建築条件なし
  • 更地
  • 角地
  • 南道路
  • 古家付き
  • 所有権あり
株式会社マイタウン 志木本店

志木・朝霞市・新座・富士見・板橋区・練馬区・西東京市を中心に東武東上線・JR武蔵野線・JR有楽町線・西武池袋線のお住まいの事なら当社にお任せ下さい!お客様の立場になって親身にご相談に乗ります。

その他の情報

外観:311002301754 土地
区画図:311002301754
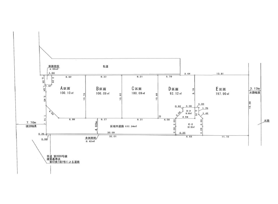
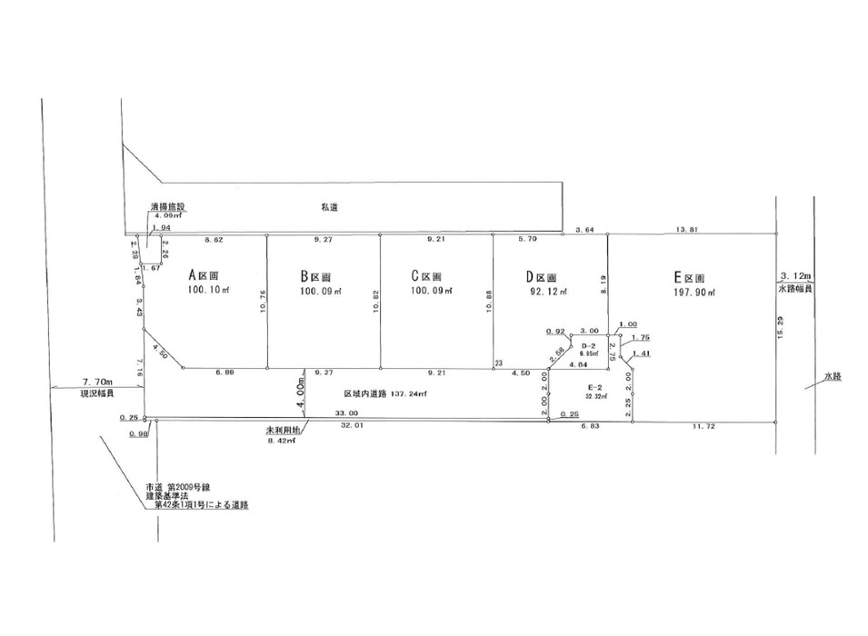
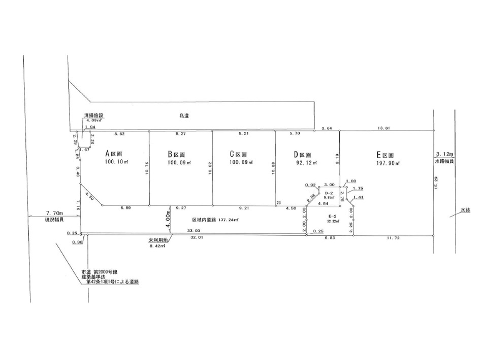
  • 2,590万円
  • 埼玉県志木市中宗岡5丁目
  • 東武鉄道東上線 志木駅/バス 10分/いろは橋 徒歩7分
  • 100.09㎡/30.27坪
  • 60%(建ぺい率)
  • 200%(容積率)

≪建築条件なし≫約30坪のゆとりある敷地/整形地/緑豊かな住環境で、理想の住まいが叶います物件についてのご見学、ご相談等いつでもお気軽にお問い合わせください^^

  • 建築条件なし
  • 更地
  • 角地
  • 南道路
  • 古家付き
  • 所有権あり
株式会社大成住宅 本店

地域密着で培った知識とお客様との絆を大切に、埼玉生まれ、大成住宅があなたの一番身近な相談役になります。不動産の購入、注文住宅、売却、投資、リフォーム・リノベーション、賃貸等。大成住宅にご相談ください。

その他の情報

外観:311002328299 土地
区画図:311002328299
  • 2,690万円
  • 埼玉県志木市中宗岡5丁目
  • 東武鉄道東上線 志木駅/バス 15分/北美町 徒歩6分
  • 100.10㎡/30.28坪
  • 60%(建ぺい率)
  • 200%(容積率)
  • 建築条件なし
  • 更地
  • 角地
  • 南道路
  • 古家付き
  • 所有権あり
株式会社藤和ハウス インターネットお問い合わせセンター

藤和ハウスは創業1975年の信頼と実績!東京・埼玉エリアを中心に全19店舗のネットワーク。不動産(一戸建て・土地・マンション)なら藤和ハウスインターネットお問合せセンターまでお気軽にお問合せください!

その他の情報

外観:311002210880 土地
区画図:311002210880
  • 2,690万円
  • 埼玉県志木市中宗岡5丁目
  • 東武鉄道東上線 志木駅/バス 15分/北美町 徒歩6分
  • 100.10㎡/30.28坪
  • 60%(建ぺい率)
  • 200%(容積率)

■暮らしやすい閑静な住宅地 ■お好きなハウスメーカーで建築可能 ■2路線3駅利用可能 ■商業施設が徒歩圏内に充実 ■小学校まで徒歩11分で子育て便利

  • 建築条件なし
  • 更地
  • 角地
  • 南道路
  • 古家付き
  • 所有権あり
株式会社マイタウン 志木本店

志木・朝霞市・新座・富士見・板橋区・練馬区・西東京市を中心に東武東上線・JR武蔵野線・JR有楽町線・西武池袋線のお住まいの事なら当社にお任せ下さい!お客様の立場になって親身にご相談に乗ります。

その他の情報

外観:311002328301 土地
区画図:311002328301
  • 2,590万円
  • 埼玉県志木市中宗岡5丁目
  • 東武鉄道東上線 志木駅/バス 15分/北美町 徒歩6分
  • 100.09㎡/30.27坪
  • 60%(建ぺい率)
  • 200%(容積率)
  • 建築条件なし
  • 更地
  • 角地
  • 南道路
  • 古家付き
  • 所有権あり
株式会社藤和ハウス インターネットお問い合わせセンター

藤和ハウスは創業1975年の信頼と実績!東京・埼玉エリアを中心に全19店舗のネットワーク。不動産(一戸建て・土地・マンション)なら藤和ハウスインターネットお問合せセンターまでお気軽にお問合せください!

その他の情報

外観:311002328300 土地
区画図:311002328300
  • 2,590万円
  • 埼玉県志木市中宗岡5丁目
  • 東武鉄道東上線 志木駅/バス 15分/北美町 徒歩6分
  • 100.09㎡/30.27坪
  • 60%(建ぺい率)
  • 200%(容積率)
  • 建築条件なし
  • 更地
  • 角地
  • 南道路
  • 古家付き
  • 所有権あり
株式会社藤和ハウス インターネットお問い合わせセンター

藤和ハウスは創業1975年の信頼と実績!東京・埼玉エリアを中心に全19店舗のネットワーク。不動産(一戸建て・土地・マンション)なら藤和ハウスインターネットお問合せセンターまでお気軽にお問合せください!

その他の情報

外観:311002210817 土地
区画図:311002210817
  • 2,590万円
  • 埼玉県志木市中宗岡5丁目
  • 東武鉄道東上線 志木駅/バス 15分/北美町 徒歩6分
  • 100.09㎡/30.27坪
  • 60%(建ぺい率)
  • 200%(容積率)

■暮らしやすい閑静な住宅地 ■お好きなハウスメーカーで建築可能 ■2路線3駅利用可能 ■商業施設が徒歩圏内に充実 ■小学校まで徒歩11分で子育て便利

  • 建築条件なし
  • 更地
  • 角地
  • 南道路
  • 古家付き
  • 所有権あり
株式会社マイタウン 志木本店

志木・朝霞市・新座・富士見・板橋区・練馬区・西東京市を中心に東武東上線・JR武蔵野線・JR有楽町線・西武池袋線のお住まいの事なら当社にお任せ下さい!お客様の立場になって親身にご相談に乗ります。

その他の情報

外観:311002210816 土地
区画図:311002210816
  • 2,590万円
  • 埼玉県志木市中宗岡5丁目
  • 東武鉄道東上線 志木駅/バス 15分/北美町 徒歩6分
  • 100.09㎡/30.27坪
  • 60%(建ぺい率)
  • 200%(容積率)

■暮らしやすい閑静な住宅地 ■お好きなハウスメーカーで建築可能 ■2路線3駅利用可能 ■商業施設が徒歩圏内に充実 ■小学校まで徒歩11分で子育て便利

  • 建築条件なし
  • 更地
  • 角地
  • 南道路
  • 古家付き
  • 所有権あり
株式会社マイタウン 志木本店

志木・朝霞市・新座・富士見・板橋区・練馬区・西東京市を中心に東武東上線・JR武蔵野線・JR有楽町線・西武池袋線のお住まいの事なら当社にお任せ下さい!お客様の立場になって親身にご相談に乗ります。

その他の情報

外観:311002037755 土地
区画図:311002037755
  • 1,950万円
  • 埼玉県志木市下宗岡3丁目
  • 武蔵野線 北朝霞駅/バス 12分/下宗岡3丁目 徒歩2分
  • 90.00㎡/27.22坪
  • 60%(建ぺい率)
  • 200%(容積率)

建築条件無しなので、お好きなハウスメーカーにて建築可能です角地につき、陽当り・風通し共に良好◎間取りの自由度が高い点も角地の魅力ですコンビニやスーパー等の商業施設が徒歩12分圏内に充実した好立地

  • 建築条件なし
  • 更地
  • 角地
  • 南道路
  • 古家付き
  • 所有権あり
株式会社大成住宅 本店

地域密着で培った知識とお客様との絆を大切に、埼玉生まれ、大成住宅があなたの一番身近な相談役になります。不動産の購入、注文住宅、売却、投資、リフォーム・リノベーション、賃貸等。大成住宅にご相談ください。

その他の情報

外観:311001985852 土地
区画図:311001985852
  • 1,950万円
  • 埼玉県志木市下宗岡3丁目
  • 武蔵野線 北朝霞駅/バス 10分/下宗岡三丁目 徒歩1分
  • 90.00㎡/27.22坪
  • 60%(建ぺい率)
  • 200%(容積率)

・「下宗岡三丁目」バス停徒歩1分 ・開放感のある北西角地 ・車の通りが少ない閑静な住環境 ・お好きなハウスメーカーで建築できます ・「ヤオコー志木宗岡店」まで徒歩10分で買い物便利

  • 建築条件なし
  • 更地
  • 角地
  • 南道路
  • 古家付き
  • 所有権あり
株式会社マイタウン 志木本店

志木・朝霞市・新座・富士見・板橋区・練馬区・西東京市を中心に東武東上線・JR武蔵野線・JR有楽町線・西武池袋線のお住まいの事なら当社にお任せ下さい!お客様の立場になって親身にご相談に乗ります。

その他の情報

外観:311002328136 土地
区画図:311002328136
  • 2,680万円
  • 埼玉県志木市中宗岡1丁目
  • 東武鉄道東上線 志木駅/バス 10分/志木高校入口 徒歩5分
  • 106.45㎡/32.2坪
  • 60%(建ぺい率)
  • 200%(容積率)
  • 建築条件なし
  • 更地
  • 角地
  • 南道路
  • 古家付き
  • 所有権あり
株式会社藤和ハウス インターネットお問い合わせセンター

藤和ハウスは創業1975年の信頼と実績!東京・埼玉エリアを中心に全19店舗のネットワーク。不動産(一戸建て・土地・マンション)なら藤和ハウスインターネットお問合せセンターまでお気軽にお問合せください!

その他の情報

外観:311002328139 土地
区画図:311002328139
  • 2,480万円
  • 埼玉県志木市中宗岡1丁目
  • 東武鉄道東上線 志木駅/バス 10分/志木高校入口 徒歩7分
  • 102.07㎡/30.87坪
  • 60%(建ぺい率)
  • 200%(容積率)
  • 建築条件なし
  • 更地
  • 角地
  • 南道路
  • 古家付き
  • 所有権あり
株式会社藤和ハウス インターネットお問い合わせセンター

藤和ハウスは創業1975年の信頼と実績!東京・埼玉エリアを中心に全19店舗のネットワーク。不動産(一戸建て・土地・マンション)なら藤和ハウスインターネットお問合せセンターまでお気軽にお問合せください!

その他の情報

外観:311002328138 土地
区画図:311002328138
  • 2,480万円
  • 埼玉県志木市中宗岡1丁目
  • 東武鉄道東上線 志木駅/バス 10分/志木高校入口 徒歩5分
  • 101.89㎡/30.82坪
  • 60%(建ぺい率)
  • 200%(容積率)
  • 建築条件なし
  • 更地
  • 角地
  • 南道路
  • 古家付き
  • 所有権あり
株式会社藤和ハウス インターネットお問い合わせセンター

藤和ハウスは創業1975年の信頼と実績!東京・埼玉エリアを中心に全19店舗のネットワーク。不動産(一戸建て・土地・マンション)なら藤和ハウスインターネットお問合せセンターまでお気軽にお問合せください!

その他の情報

外観:311002328137 土地
区画図:311002328137
  • 2,480万円
  • 埼玉県志木市中宗岡1丁目
  • 東武鉄道東上線 志木駅/バス 10分/志木高校入口 徒歩5分
  • 101.87㎡/30.81坪
  • 60%(建ぺい率)
  • 200%(容積率)
  • 建築条件なし
  • 更地
  • 角地
  • 南道路
  • 古家付き
  • 所有権あり
株式会社藤和ハウス インターネットお問い合わせセンター

藤和ハウスは創業1975年の信頼と実績!東京・埼玉エリアを中心に全19店舗のネットワーク。不動産(一戸建て・土地・マンション)なら藤和ハウスインターネットお問合せセンターまでお気軽にお問合せください!

その他の情報

外観:311002328302 土地
区画図:311002328302
  • 2,490万円
  • 埼玉県志木市中宗岡5丁目
  • 東武鉄道東上線 志木駅/バス 15分/北美町 徒歩6分
  • 92.12㎡/27.86坪
  • 60%(建ぺい率)
  • 200%(容積率)
  • 建築条件なし
  • 更地
  • 角地
  • 南道路
  • 古家付き
  • 所有権あり
株式会社藤和ハウス インターネットお問い合わせセンター

藤和ハウスは創業1975年の信頼と実績!東京・埼玉エリアを中心に全19店舗のネットワーク。不動産(一戸建て・土地・マンション)なら藤和ハウスインターネットお問合せセンターまでお気軽にお問合せください!

その他の情報

外観:311002210879 土地
区画図:311002210879
  • 2,490万円
  • 埼玉県志木市中宗岡5丁目
  • 東武鉄道東上線 志木駅/バス 15分/北美町 徒歩6分
  • 92.12㎡/27.86坪
  • 60%(建ぺい率)
  • 200%(容積率)

■暮らしやすい閑静な住宅地 ■お好きなハウスメーカーで建築可能 ■2路線3駅利用可能 ■商業施設が徒歩圏内に充実 ■小学校まで徒歩11分で子育て便利

  • 建築条件なし
  • 更地
  • 角地
  • 南道路
  • 古家付き
  • 所有権あり
株式会社マイタウン 志木本店

志木・朝霞市・新座・富士見・板橋区・練馬区・西東京市を中心に東武東上線・JR武蔵野線・JR有楽町線・西武池袋線のお住まいの事なら当社にお任せ下さい!お客様の立場になって親身にご相談に乗ります。

その他の情報

外観:311002328132 土地
区画図:311002328132
  • 2,280万円
  • 埼玉県志木市中宗岡1丁目
  • 東武鉄道東上線 志木駅/バス 10分/志木高校入口 徒歩7分
  • 102.01㎡/30.85坪
  • 60%(建ぺい率)
  • 200%(容積率)
  • 建築条件なし
  • 更地
  • 角地
  • 南道路
  • 古家付き
  • 所有権あり
株式会社藤和ハウス インターネットお問い合わせセンター

藤和ハウスは創業1975年の信頼と実績!東京・埼玉エリアを中心に全19店舗のネットワーク。不動産(一戸建て・土地・マンション)なら藤和ハウスインターネットお問合せセンターまでお気軽にお問合せください!

その他の情報

外観:311002328131 土地
区画図:311002328131
  • 2,280万円
  • 埼玉県志木市中宗岡1丁目
  • 東武鉄道東上線 志木駅/バス 10分/志木高校入口 徒歩5分
  • 101.92㎡/30.83坪
  • 60%(建ぺい率)
  • 200%(容積率)
  • 建築条件なし
  • 更地
  • 角地
  • 南道路
  • 古家付き
  • 所有権あり
株式会社藤和ハウス インターネットお問い合わせセンター

藤和ハウスは創業1975年の信頼と実績!東京・埼玉エリアを中心に全19店舗のネットワーク。不動産(一戸建て・土地・マンション)なら藤和ハウスインターネットお問合せセンターまでお気軽にお問合せください!

その他の情報

外観:311002328130 土地
区画図:311002328130
  • 2,280万円
  • 埼玉県志木市中宗岡1丁目
  • 東武鉄道東上線 志木駅/バス 10分/志木高校入口 徒歩5分
  • 101.90㎡/30.82坪
  • 60%(建ぺい率)
  • 200%(容積率)
  • 建築条件なし
  • 更地
  • 角地
  • 南道路
  • 古家付き
  • 所有権あり
株式会社藤和ハウス インターネットお問い合わせセンター

藤和ハウスは創業1975年の信頼と実績!東京・埼玉エリアを中心に全19店舗のネットワーク。不動産(一戸建て・土地・マンション)なら藤和ハウスインターネットお問合せセンターまでお気軽にお問合せください!

その他の情報

外観:311002328468 土地
区画図:311002328468
  • 2,780万円
  • 埼玉県志木市中宗岡1丁目
  • 東武鉄道東上線 志木駅/バス 10分/志木高校入口 徒歩7分
  • 109.12㎡/33坪
  • 60%(建ぺい率)
  • 200%(容積率)
  • 建築条件なし
  • 更地
  • 角地
  • 南道路
  • 古家付き
  • 所有権あり
株式会社藤和ハウス インターネットお問い合わせセンター

藤和ハウスは創業1975年の信頼と実績!東京・埼玉エリアを中心に全19店舗のネットワーク。不動産(一戸建て・土地・マンション)なら藤和ハウスインターネットお問合せセンターまでお気軽にお問合せください!

その他の情報

外観:311002328135 土地
区画図:311002328135
  • 2,780万円
  • 埼玉県志木市中宗岡1丁目
  • 東武鉄道東上線 志木駅/バス 10分/志木高校入口 徒歩7分
  • 108.73㎡/32.89坪
  • 60%(建ぺい率)
  • 200%(容積率)
  • 建築条件なし
  • 更地
  • 角地
  • 南道路
  • 古家付き
  • 所有権あり
株式会社藤和ハウス インターネットお問い合わせセンター

藤和ハウスは創業1975年の信頼と実績!東京・埼玉エリアを中心に全19店舗のネットワーク。不動産(一戸建て・土地・マンション)なら藤和ハウスインターネットお問合せセンターまでお気軽にお問合せください!

その他の情報

外観:311002329435 土地
区画図:311002329435
  • 2,580万円
  • 埼玉県志木市中宗岡1丁目
  • 東武鉄道東上線 志木駅/バス 10分/志木高校入口 徒歩5分
  • 103.61㎡/31.34坪
  • 60%(建ぺい率)
  • 200%(容積率)
  • 建築条件なし
  • 更地
  • 角地
  • 南道路
  • 古家付き
  • 所有権あり
株式会社藤和ハウス インターネットお問い合わせセンター

藤和ハウスは創業1975年の信頼と実績!東京・埼玉エリアを中心に全19店舗のネットワーク。不動産(一戸建て・土地・マンション)なら藤和ハウスインターネットお問合せセンターまでお気軽にお問合せください!

その他の情報

外観:311002328467 土地
区画図:311002328467
  • 2,580万円
  • 埼玉県志木市中宗岡1丁目
  • 東武鉄道東上線 志木駅/バス 10分/志木高校入口 徒歩7分
  • 119.76㎡/36.22坪
  • 60%(建ぺい率)
  • 200%(容積率)
  • 建築条件なし
  • 更地
  • 角地
  • 南道路
  • 古家付き
  • 所有権あり
株式会社藤和ハウス インターネットお問い合わせセンター

藤和ハウスは創業1975年の信頼と実績!東京・埼玉エリアを中心に全19店舗のネットワーク。不動産(一戸建て・土地・マンション)なら藤和ハウスインターネットお問合せセンターまでお気軽にお問合せください!

その他の情報

外観:311002328129 土地
区画図:311002328129
  • 2,580万円
  • 埼玉県志木市中宗岡1丁目
  • 東武鉄道東上線 志木駅/バス 10分/志木高校入口 徒歩5分
  • 108.42㎡/32.79坪
  • 60%(建ぺい率)
  • 200%(容積率)
  • 建築条件なし
  • 更地
  • 角地
  • 南道路
  • 古家付き
  • 所有権あり
株式会社藤和ハウス インターネットお問い合わせセンター

藤和ハウスは創業1975年の信頼と実績!東京・埼玉エリアを中心に全19店舗のネットワーク。不動産(一戸建て・土地・マンション)なら藤和ハウスインターネットお問合せセンターまでお気軽にお問合せください!

その他の情報

外観:311002327632 土地
区画図:311002327632
  • 2,580万円
  • 埼玉県志木市中宗岡1丁目
  • 東武鉄道東上線 志木駅/バス 10分/志木高校入口 徒歩5分
  • 108.33㎡/32.76坪
  • 60%(建ぺい率)
  • 200%(容積率)
  • 建築条件なし
  • 更地
  • 角地
  • 南道路
  • 古家付き
  • 所有権あり
株式会社藤和ハウス インターネットお問い合わせセンター

藤和ハウスは創業1975年の信頼と実績!東京・埼玉エリアを中心に全19店舗のネットワーク。不動産(一戸建て・土地・マンション)なら藤和ハウスインターネットお問合せセンターまでお気軽にお問合せください!

その他の情報

外観:311002329434 土地
区画図:311002329434
  • 2,380万円
  • 埼玉県志木市中宗岡1丁目
  • 東武鉄道東上線 志木駅/バス 10分/志木高校入口 徒歩7分
  • 114.21㎡/34.54坪
  • 60%(建ぺい率)
  • 200%(容積率)
  • 建築条件なし
  • 更地
  • 角地
  • 南道路
  • 古家付き
  • 所有権あり
株式会社藤和ハウス インターネットお問い合わせセンター

藤和ハウスは創業1975年の信頼と実績!東京・埼玉エリアを中心に全19店舗のネットワーク。不動産(一戸建て・土地・マンション)なら藤和ハウスインターネットお問合せセンターまでお気軽にお問合せください!

その他の情報

外観:311002328144 土地
区画図:311002328144
  • 2,380万円
  • 埼玉県志木市中宗岡1丁目
  • 東武鉄道東上線 志木駅/バス 10分/志木高校入口 徒歩5分
  • 116.63㎡/35.28坪
  • 60%(建ぺい率)
  • 200%(容積率)
  • 建築条件なし
  • 更地
  • 角地
  • 南道路
  • 古家付き
  • 所有権あり
株式会社藤和ハウス インターネットお問い合わせセンター

藤和ハウスは創業1975年の信頼と実績!東京・埼玉エリアを中心に全19店舗のネットワーク。不動産(一戸建て・土地・マンション)なら藤和ハウスインターネットお問合せセンターまでお気軽にお問合せください!

その他の情報

外観:311002328143 土地
区画図:311002328143
  • 2,380万円
  • 埼玉県志木市中宗岡1丁目
  • 東武鉄道東上線 志木駅/バス 10分/志木高校入口 徒歩5分
  • 117.60㎡/35.57坪
  • 60%(建ぺい率)
  • 200%(容積率)
  • 建築条件なし
  • 更地
  • 角地
  • 南道路
  • 古家付き
  • 所有権あり
株式会社藤和ハウス インターネットお問い合わせセンター

藤和ハウスは創業1975年の信頼と実績!東京・埼玉エリアを中心に全19店舗のネットワーク。不動産(一戸建て・土地・マンション)なら藤和ハウスインターネットお問合せセンターまでお気軽にお問合せください!

その他の情報

外観:311002328142 土地
区画図:311002328142
  • 2,380万円
  • 埼玉県志木市中宗岡1丁目
  • 東武鉄道東上線 志木駅/バス 10分/志木高校入口 徒歩5分
  • 110.30㎡/33.36坪
  • 60%(建ぺい率)
  • 200%(容積率)
  • 建築条件なし
  • 更地
  • 角地
  • 南道路
  • 古家付き
  • 所有権あり
株式会社藤和ハウス インターネットお問い合わせセンター

藤和ハウスは創業1975年の信頼と実績!東京・埼玉エリアを中心に全19店舗のネットワーク。不動産(一戸建て・土地・マンション)なら藤和ハウスインターネットお問合せセンターまでお気軽にお問合せください!

その他の情報

1ページ目(5ページ中) 次へ
この条件で新着メールを受取る
この検索条件を保存する
追加が完了しました。

現在00件保存されています。(最大5件)

保存した条件一覧を見る

現在00件保存されています。

残り00件追加することができます。

お気に入り物件一覧を見る

間隔を空けてお試しください。

問合せが未完了の物件

エリアを変更 条件を変更
チェックした物件をまとめて 資料請求(無料) お気に入りに追加