西脇市(兵庫県)の2,000万円以下の土地・宅地・分譲地の購入情報

西脇市(兵庫県)の2,000万円以下の土地を集めました。土地面積や立地条件などと組み合わせて希望の物件を見つけましょう。

33

↓ チェックした物件をまとめてお問い合わせ

外観:328000623304 土地
区画図:328000623304
  • 1,180万円
  • 兵庫県西脇市野村町
  • 加古川線 西脇市駅/徒歩10分
  • 225.15㎡/68.1坪
  • 50%(建ぺい率)
  • 100%(容積率)

スーパー近く、小・中学校は1km圏内でお子様の通学に安心です。

  • 建築条件なし
  • 更地
  • 角地
  • 南道路
  • 古家付き
  • 所有権あり
有限会社スローライフ 北はりま店

古民家、新築、注文住宅、別荘、賃貸☆不動産のことなら有限会社スローライフ!北播磨地域を中心としたお住まいのお手伝いをさせて頂きます。

その他の情報

外観:328000605680 土地
区画図:328000605680
  • 998万円
  • 兵庫県西脇市和田町
  • 加古川線 西脇市駅/徒歩20分
  • 363.43㎡/109.93坪
  • 60%(建ぺい率)
  • 200%(容積率)

建築条件なしの土地ですのでお好きなハウスメーカーで建築いただけます。約110坪の広い土地ですので平屋や広い庭も検討いただけます!小中学校や各種買い物施設周辺に多数ございます♪

  • 建築条件なし
  • 更地
  • 角地
  • 南道路
  • 古家付き
  • 所有権あり
いえとち工房 株式会社藤本工務店

その他の情報

外観:328000624675 土地
区画図:328000624675
  • 1,080万円
  • 兵庫県西脇市小坂町
  • 加古川線 西脇市駅/バス 26分/小坂町南 徒歩5分
  • 292.20㎡/88.39坪
  • 60%(建ぺい率)
  • 200%(容積率)

建築条件無しなので好きな建築業者に依頼することができます。

  • 建築条件なし
  • 更地
  • 角地
  • 南道路
  • 古家付き
  • 所有権あり
有限会社スローライフ 北はりま店

古民家、新築、注文住宅、別荘、賃貸☆不動産のことなら有限会社スローライフ!北播磨地域を中心としたお住まいのお手伝いをさせて頂きます。

その他の情報

NO IMAGE 土地
区画図:328000624656
  • 1,380万円
  • 兵庫県西脇市郷瀬町
  • 加古川線 新西脇駅/徒歩33分
  • 455.56㎡/137.8坪
  • 50%(建ぺい率)
  • 100%(容積率)
  • 建築条件なし
  • 更地
  • 角地
  • 南道路
  • 古家付き
  • 所有権あり
有限会社スローライフ 北はりま店

古民家、新築、注文住宅、別荘、賃貸☆不動産のことなら有限会社スローライフ!北播磨地域を中心としたお住まいのお手伝いをさせて頂きます。

その他の情報

外観:328000624638 土地
区画図:328000624638
  • 750万円
  • 兵庫県西脇市上野
  • 加古川線 新西脇駅/徒歩16分
  • 207.89㎡/62.88坪
  • 80%(建ぺい率)
  • 400%(容積率)
  • 建築条件なし
  • 更地
  • 角地
  • 南道路
  • 古家付き
  • 所有権あり
有限会社スローライフ 北はりま店

古民家、新築、注文住宅、別荘、賃貸☆不動産のことなら有限会社スローライフ!北播磨地域を中心としたお住まいのお手伝いをさせて頂きます。

その他の情報

NO IMAGE 土地
区画図:328000623288
  • 1,140万円
  • 兵庫県西脇市野村町
  • 加古川線 西脇市駅/徒歩2分
  • 404.03㎡/122.21坪
  • 80%(建ぺい率)
  • 200%(容積率)

建築条件のない土地です。

  • 建築条件なし
  • 更地
  • 角地
  • 南道路
  • 古家付き
  • 所有権あり
有限会社スローライフ 北はりま店

古民家、新築、注文住宅、別荘、賃貸☆不動産のことなら有限会社スローライフ!北播磨地域を中心としたお住まいのお手伝いをさせて頂きます。

その他の情報

外観:328000623298 土地
区画図:328000623298
  • 780万円
  • 兵庫県西脇市上野
  • 加古川線 新西脇駅/徒歩21分
  • 191.73㎡/57.99坪
  • 60%(建ぺい率)
  • 200%(容積率)

約57坪☆西脇小学校区☆建築条件ナシ、お好きなハウスメーカーで建築可能です☆

  • 建築条件なし
  • 更地
  • 角地
  • 南道路
  • 古家付き
  • 所有権あり
有限会社スローライフ 北はりま店

古民家、新築、注文住宅、別荘、賃貸☆不動産のことなら有限会社スローライフ!北播磨地域を中心としたお住まいのお手伝いをさせて頂きます。

その他の情報

外観:328000623297 土地
区画図:328000623297
  • 780万円
  • 兵庫県西脇市上野
  • 加古川線 新西脇駅/徒歩21分
  • 192.70㎡/58.29坪
  • 60%(建ぺい率)
  • 200%(容積率)

約58坪☆西脇小学校区☆建築条件ナシ、お好きなハウスメーカーで建築可能です☆

  • 建築条件なし
  • 更地
  • 角地
  • 南道路
  • 古家付き
  • 所有権あり
有限会社スローライフ 北はりま店

古民家、新築、注文住宅、別荘、賃貸☆不動産のことなら有限会社スローライフ!北播磨地域を中心としたお住まいのお手伝いをさせて頂きます。

その他の情報

NO IMAGE 土地
区画図:328000624633
  • 1,100万円
  • 兵庫県西脇市野村町
  • 加古川線 西脇市駅/徒歩2分
  • 361.11㎡/109.23坪
  • 80%(建ぺい率)
  • 200%(容積率)

建築条件のない土地です。

  • 建築条件なし
  • 更地
  • 角地
  • 南道路
  • 古家付き
  • 所有権あり
有限会社スローライフ 北はりま店

古民家、新築、注文住宅、別荘、賃貸☆不動産のことなら有限会社スローライフ!北播磨地域を中心としたお住まいのお手伝いをさせて頂きます。

その他の情報

外観:328000623293 土地
区画図:328000623293
  • 576万円
  • 兵庫県西脇市上野
  • 加古川線 西脇市駅/バス 10分/上野南 徒歩3分
  • 157.00㎡/47.49坪
  • 60%(建ぺい率)
  • 200%(容積率)

建築条件なし 西脇小学校区

  • 建築条件なし
  • 更地
  • 角地
  • 南道路
  • 古家付き
  • 所有権あり
有限会社スローライフ 北はりま店

古民家、新築、注文住宅、別荘、賃貸☆不動産のことなら有限会社スローライフ!北播磨地域を中心としたお住まいのお手伝いをさせて頂きます。

その他の情報

外観:328000624671 土地
区画図:328000624671
  • 890万円
  • 兵庫県西脇市野村町
  • 加古川線 西脇市駅/徒歩10分
  • 196.66㎡/59.48坪
  • 50%(建ぺい率)
  • 100%(容積率)

スーパー近く、小・中学校は1km圏内でお子様の通学に安心です。

  • 建築条件なし
  • 更地
  • 角地
  • 南道路
  • 古家付き
  • 所有権あり
有限会社スローライフ 北はりま店

古民家、新築、注文住宅、別荘、賃貸☆不動産のことなら有限会社スローライフ!北播磨地域を中心としたお住まいのお手伝いをさせて頂きます。

その他の情報

外観:328000624673 土地
区画図:328000624673
  • 880万円
  • 兵庫県西脇市野村町
  • 加古川線 西脇市駅/徒歩10分
  • 181.28㎡/54.83坪
  • 50%(建ぺい率)
  • 100%(容積率)

スーパー近く、小・中学校は1km圏内でお子様の通学に安心です。

  • 建築条件なし
  • 更地
  • 角地
  • 南道路
  • 古家付き
  • 所有権あり
有限会社スローライフ 北はりま店

古民家、新築、注文住宅、別荘、賃貸☆不動産のことなら有限会社スローライフ!北播磨地域を中心としたお住まいのお手伝いをさせて頂きます。

その他の情報

外観:328000624672 土地
区画図:328000624672
  • 880万円
  • 兵庫県西脇市野村町
  • 加古川線 西脇市駅/徒歩10分
  • 181.94㎡/55.03坪
  • 50%(建ぺい率)
  • 100%(容積率)

スーパー近く、小・中学校は1km圏内でお子様の通学に安心です。

  • 建築条件なし
  • 更地
  • 角地
  • 南道路
  • 古家付き
  • 所有権あり
有限会社スローライフ 北はりま店

古民家、新築、注文住宅、別荘、賃貸☆不動産のことなら有限会社スローライフ!北播磨地域を中心としたお住まいのお手伝いをさせて頂きます。

その他の情報

NO IMAGE 土地
区画図:328000624649
  • 1,000万円
  • 兵庫県西脇市黒田庄町門柳
  • 加古川線 黒田庄駅/徒歩54分
  • 2904.00㎡/878.45坪
  • 0%(建ぺい率)
  • 0%(容積率)
  • 建築条件なし
  • 更地
  • 角地
  • 南道路
  • 古家付き
  • 所有権あり
有限会社スローライフ 北はりま店

古民家、新築、注文住宅、別荘、賃貸☆不動産のことなら有限会社スローライフ!北播磨地域を中心としたお住まいのお手伝いをさせて頂きます。

その他の情報

NO IMAGE 土地
区画図:328000624652
  • 825万円
  • 兵庫県西脇市明楽寺町
  • 加古川線 西脇市駅/バス 12分/岡崎町 徒歩22分
  • 909.86㎡/275.23坪
  • 60%(建ぺい率)
  • 200%(容積率)

購入費用もほかの土地と比べると抑えられる825万円の土地です。こちらの土地は100坪以上あるので、広さにゆとりのある生活が送れます。周囲の環境もきっと満足して頂ける住宅用地です。ぜひご覧ください。当

  • 建築条件なし
  • 更地
  • 角地
  • 南道路
  • 古家付き
  • 所有権あり
有限会社スローライフ 北はりま店

古民家、新築、注文住宅、別荘、賃貸☆不動産のことなら有限会社スローライフ!北播磨地域を中心としたお住まいのお手伝いをさせて頂きます。

その他の情報

外観:328000623458 土地
区画図:328000623458
  • 480万円
  • 兵庫県西脇市比延町
  • 加古川線 比延駅/徒歩13分
  • 531.69㎡/160.83坪
  • 60%(建ぺい率)
  • 200%(容積率)
  • 建築条件なし
  • 更地
  • 角地
  • 南道路
  • 古家付き
  • 所有権あり
有限会社スローライフ 北はりま店

古民家、新築、注文住宅、別荘、賃貸☆不動産のことなら有限会社スローライフ!北播磨地域を中心としたお住まいのお手伝いをさせて頂きます。

その他の情報

NO IMAGE 土地
区画図:328000624654
  • 1,100万円
  • 兵庫県西脇市西脇
  • 加古川線 新西脇駅/徒歩19分
  • 258.44㎡/78.17坪
  • 80%(建ぺい率)
  • 200%(容積率)

売地をお探しの方に、こちらの土地はイチオシです。建築条件なしなので、建物の間取りも自分で考えることが可能で、建築についてじっくり考えられます。

  • 建築条件なし
  • 更地
  • 角地
  • 南道路
  • 古家付き
  • 所有権あり
有限会社スローライフ 北はりま店

古民家、新築、注文住宅、別荘、賃貸☆不動産のことなら有限会社スローライフ!北播磨地域を中心としたお住まいのお手伝いをさせて頂きます。

その他の情報

外観:328000615654 土地
区画図:328000615654
  • 680万円
  • 兵庫県西脇市野村町
  • 加古川線 西脇市駅/徒歩29分
  • 183.55㎡/55.52坪
  • 50%(建ぺい率)
  • 100%(容積率)

■敷地面積183.55平方メートル(55.52坪)■嬉しい解体更地渡しです!■閑静な住宅地です!■人気の平屋建築かのうです♪■建築条件がない為、お好きなハウスメーカー等・工務店で建築可能です!

  • 建築条件なし
  • 更地
  • 角地
  • 南道路
  • 古家付き
  • 所有権あり
株式会社ランドアークハウジング

『お客様と不動産を繋げる架け橋になりたい!!』全力で「売りたい」「買いたい」をサポート致します。北播磨地域の不動産情報はランドアークハウジングにお任せ下さい!!

その他の情報

NO IMAGE 土地
区画図:328000624651
  • 1,010万円
  • 兵庫県西脇市西脇
  • 加古川線 新西脇駅/徒歩17分
  • 556.10㎡/168.21坪
  • 60%(建ぺい率)
  • 200%(容積率)
  • 建築条件なし
  • 更地
  • 角地
  • 南道路
  • 古家付き
  • 所有権あり
有限会社スローライフ 北はりま店

古民家、新築、注文住宅、別荘、賃貸☆不動産のことなら有限会社スローライフ!北播磨地域を中心としたお住まいのお手伝いをさせて頂きます。

その他の情報

NO IMAGE 土地
区画図:328000624655
  • 790万円
  • 兵庫県西脇市西脇
  • 加古川線 西脇市駅/バス 18分/西脇地方合同庁舎前 徒歩3分
  • 492.00㎡/148.82坪
  • 60%(建ぺい率)
  • 200%(容積率)

こだわりで選びたい方におすすめ。西脇市エリアで住まいをお探しなら「西脇市西脇」。立地する第二種住居地域は、住宅や商業施設、工場などが混在している市街地のうち住宅の割合が高い地域です。信頼と実績の当社が

  • 建築条件なし
  • 更地
  • 角地
  • 南道路
  • 古家付き
  • 所有権あり
有限会社スローライフ 北はりま店

古民家、新築、注文住宅、別荘、賃貸☆不動産のことなら有限会社スローライフ!北播磨地域を中心としたお住まいのお手伝いをさせて頂きます。

その他の情報

外観:328000623295 土地
区画図:328000623295
  • 150万円
  • 兵庫県西脇市水尾町
  • 加古川線 西脇市駅/バス 19分/中水尾 徒歩4分
  • 458.00㎡/138.54坪
  • 60%(建ぺい率)
  • 200%(容積率)
  • 建築条件なし
  • 更地
  • 角地
  • 南道路
  • 古家付き
  • 所有権あり
有限会社スローライフ 北はりま店

古民家、新築、注文住宅、別荘、賃貸☆不動産のことなら有限会社スローライフ!北播磨地域を中心としたお住まいのお手伝いをさせて頂きます。

その他の情報

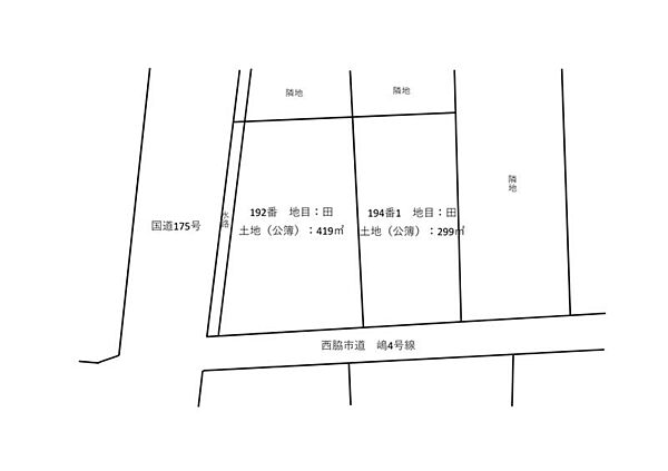
外観:328000502449 土地
区画図:328000502449
  • 750万円
  • 兵庫県西脇市嶋
  • 加古川線 日本へそ公園駅/徒歩17分
  • 718.00㎡/217.19坪
  • 60%(建ぺい率)
  • 200%(容積率)

国道沿い!第3種農地。地嶋地区空家等活用促進特別区域のため様々な活用の可能性があります!

  • 建築条件なし
  • 更地
  • 角地
  • 南道路
  • 古家付き
  • 所有権あり
株式会社嶺山エステート

インターネットを活用しながら業務を行っておりますので、内容によりますが日本全国不動産に関わるお手伝いをさせて頂けます。空き家問題など、お困りの際は何でもご相談下さい。投資用不動産も経験が長いです。

その他の情報

外観:328000605681 土地
区画図:328000605681
  • 780万円
  • 兵庫県西脇市野村町
  • 加古川線 西脇市駅/徒歩9分
  • 166.32㎡/50.31坪
  • 60%(建ぺい率)
  • 200%(容積率)

◆西脇市でも人気の野村町に分譲6区画が出ました♪◆スーパーや駅が徒歩圏内にございます!◆完成宅地となります!

  • 建築条件なし
  • 更地
  • 角地
  • 南道路
  • 古家付き
  • 所有権あり
いえとち工房 株式会社藤本工務店

その他の情報

外観:328000624291 土地
区画図:328000624291
  • 98万円
  • 兵庫県西脇市和田町
  • 加古川線 新西脇駅/徒歩16分
  • 145.00㎡/43.86坪
  • 60%(建ぺい率)
  • 200%(容積率)

重春小学校区 建築条件なし 更地渡し

  • 建築条件なし
  • 更地
  • 角地
  • 南道路
  • 古家付き
  • 所有権あり
有限会社スローライフ 北はりま店

古民家、新築、注文住宅、別荘、賃貸☆不動産のことなら有限会社スローライフ!北播磨地域を中心としたお住まいのお手伝いをさせて頂きます。

その他の情報

外観:328000446667 土地
区画図:328000446667
  • 680万円
  • 兵庫県西脇市西脇
  • 加古川線 新西脇駅/徒歩20分
  • 167.69㎡/50.72坪
  • 80%(建ぺい率)
  • 200%(容積率)

更地♪、建築条件なし♪、南東側道路陽当たり良好♪

  • 建築条件なし
  • 更地
  • 角地
  • 南道路
  • 古家付き
  • 所有権あり
株式会社わいわいホーム

私たちにはお客様の大切な人生と財産をまるごとお引き受けする重い責任があります。私たちは誠心誠意、全身全霊をかけてお客様と向き合うことをお約束します。

その他の情報

外観:328000485976 土地
NO IMAGE
  • 780万円
  • 兵庫県西脇市西脇
  • 加古川線 新西脇駅/徒歩21分
  • 193.97㎡/58.67坪
  • 80%(建ぺい率)
  • 400%(容積率)

更地♪建築条件なし♪敷地面積約58坪♪

  • 建築条件なし
  • 更地
  • 角地
  • 南道路
  • 古家付き
  • 所有権あり
株式会社わいわいホーム

私たちにはお客様の大切な人生と財産をまるごとお引き受けする重い責任があります。私たちは誠心誠意、全身全霊をかけてお客様と向き合うことをお約束します。

その他の情報

外観:328000605296 土地
区画図:328000605296
  • 80万円
  • 兵庫県西脇市富田町
  • 加古川線 新西脇駅/徒歩45分
  • 209.97㎡/63.51坪
  • 60%(建ぺい率)
  • 200%(容積率)

西脇市富田町の閑静な住宅街での売土地です!

  • 建築条件なし
  • 更地
  • 角地
  • 南道路
  • 古家付き
  • 所有権あり
ハウスドゥ 加西 株式会社アクラス不動産販売

兵庫県「北はりま地域」の不動産購入・売買・住み替えなど、お家探しのご相談はお任せください!

その他の情報

外観:328000556113 土地
区画図:328000556113
  • 870万円
  • 兵庫県西脇市上野
  • 加古川線 新西脇駅/徒歩19分
  • 172.00㎡/52.02坪
  • 60%(建ぺい率)
  • 200%(容積率)

◇建築条件なし◇近隣商業施設多数あり♪◇南側道路接道しております!◇約52坪の土地です◇お問い合わせは、タカセ不動産株式会社 小野店まで!どうぞ、お気軽にご相談ください♪

  • 建築条件なし
  • 更地
  • 角地
  • 南道路
  • 古家付き
  • 所有権あり
タカセ不動産株式会社 小野店

北播磨地域のことならタカセ不動産小野店へ!アパートから店舗、倉庫、事業用土地など多数物件を取り扱っております!是非弊社へお問い合わせ下さい。弊社独自の視点でお客様へご提案させて頂きます。

その他の情報

1ページ目(2ページ中) 次へ
この条件で新着メールを受取る
この検索条件を保存する
追加が完了しました。

現在00件保存されています。(最大5件)

保存した条件一覧を見る

現在00件保存されています。

残り00件追加することができます。

お気に入り物件一覧を見る

間隔を空けてお試しください。

問合せが未完了の物件

エリアを変更 条件を変更
チェックした物件をまとめて 資料請求(無料) お気に入りに追加